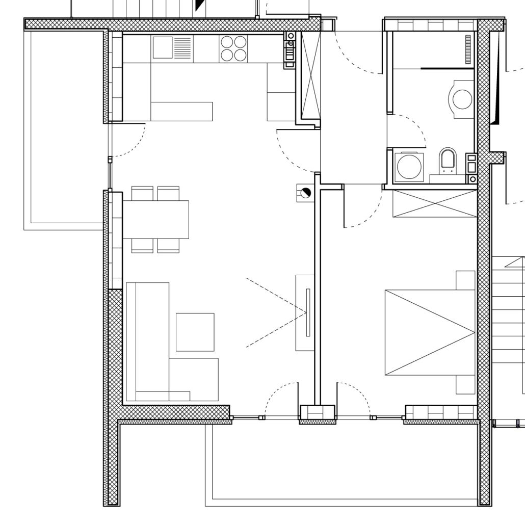
Stambena jedinica 73 m2
Stan od 73 m² sastoji se od dnevnog boravka, kuhinje, trpezarije, hodnika, spavaće sobe, toaleta i dvije terase.
Ono što naš objekat čini jedinstvenim su pažljivo odabrani projekti, stručan nadzor, kvalitetno izvođenje radova i vrhunski materijali koji osiguravaju izvanrednu kvalitetu i udobnost.
3
Sobe
2024
Godina izgradnje
73 m2
Površina
3.500 KM
Po kvadratu




